鄭州杰凱專業z型斗式上料機生產廠家,該機采用連續斗式上料機,上料過程中不會破壞物料固有的特性,特別適用于顆粒和易碎物料的輸送,整機設計合理,故障率低,運行平穩,可實現自動化無人值守,可承接個性化定制不同的高度和輸送量,價格美麗,歡迎垂詢!

用于糧食、食品、飼料、化工行業中顆粒及粉狀物料的垂直提升輸送。Z型斗式上料機可以配有包裝單元的定量自動包裝系統,Z型斗式上料機廣泛應用于食品包裝行業。主要由304不銹鋼和食品級聚丙烯塑料制成。由控制電路及料位控制實現自動進、停。
z型斗式上料機生產廠家產品特點。
能夠快速提高材料的水平、垂直高度。
可實現電腦控制,自動化程度高;
操作簡便,Z型斗式上料機便于維修。
斗式上料機抗酸、堿、油性及耐蝕材料。
5.整個機器是由304不銹鋼和聚丙烯塑料制成,Z型斗式上料機可用來運輸食品級材料。
6.材料在運輸中極少損壞,斗式上料機可減少材料損耗。
7.振動料斗可以快速、均勻,不堵塞,不會堵塞。
z型斗提升機技術參數。

動力:0.75-1.5千瓦。
Z型斗式上料機的輸送量:3-8m/h。
輸送帶:1.6L(420*140*70)(PP食品級)
Z型斗式上料機工作電壓:220v/380v50hz。
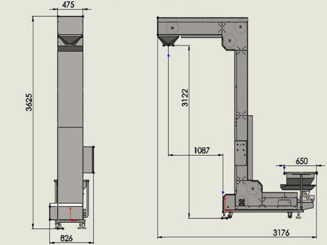
尺寸:L2300*W1000*1250mm。
體重:500-600公斤。
4.z型斗式上料機生產廠家產品概況:
1.z型斗式提升機全密封設計,不漏塵,生產環境干凈;
變頻器調節速度,隨時調節輸送,方便快捷;
整機設計結構合理,故障點少,故障率低;
四、可以根據客戶定制。
產地廠家直銷,優質產品,售后保證,價格美觀;
6.誘導出料、密實的料斗,Z型斗式上料機在物料提升過程中幾乎無回料及挖掘,效率不高。
7.我們可以根據用戶需要定做不同高度和產量的Z型斗式上料機。
z型斗式上料機生產廠家由運動部分(料斗與牽引鏈條)、帶有傳動鏈輪的斗式提升機上部區段、帶有拉緊輪的斗式提升機下部區段、斗式提升機中間機殼、斗式提升機驅動裝置、斗式提升機逆止制動裝置等組成。該斗式提升機的料斗為間斷式布置,利用“掏取法”進行裝載,“離心投料法”卸料。該斗式提升機的牽引機構是兩根環形鏈條。





客服1